top of page
774-262-3187
Create Your First Project
Start adding your projects to your portfolio. Click on "Manage Projects" to get started
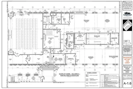
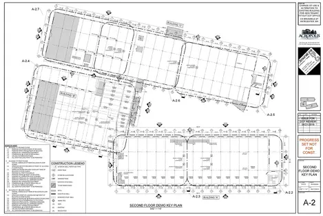
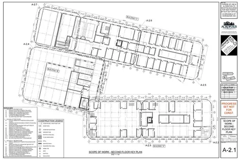
3-5 Brussels, Worcester
Alteration and renovation of three existing building for new tenant Fit-Out DCF Office (Department of child and family services Worcester Division)
Project requirements to combine client services, legal, and regional departments for DCF into one location.
Building will accommodate 275 employees and will do a hundred clients a day
Buildings built between 1900 and 1920, formally Bloom and textiles manufacturing
Client: Electrical Contracting and contractor
Status: Under construction
Total 76,837 SF




























































bottom of page


